About the Building
A bold new landmark is rising on Illinois Wesleyan University's Eckley Quad.
The Petrick Idea Center will be a campus nerve center for creativity, collaboration, cross-discipline teamwork, and conscience-driven innovation. Designed to bring students of every major together to develop meaningful solutions to real-world challenges, this is more than just a building — it’s a launchpad for ideas that make a difference.
Connected to the Ames School of Art and Design, The Petrick Idea Center reflects Illinois Wesleyan’s belief that the Liberal Arts, paired with innovation and entrepreneurship, can shape a better future.
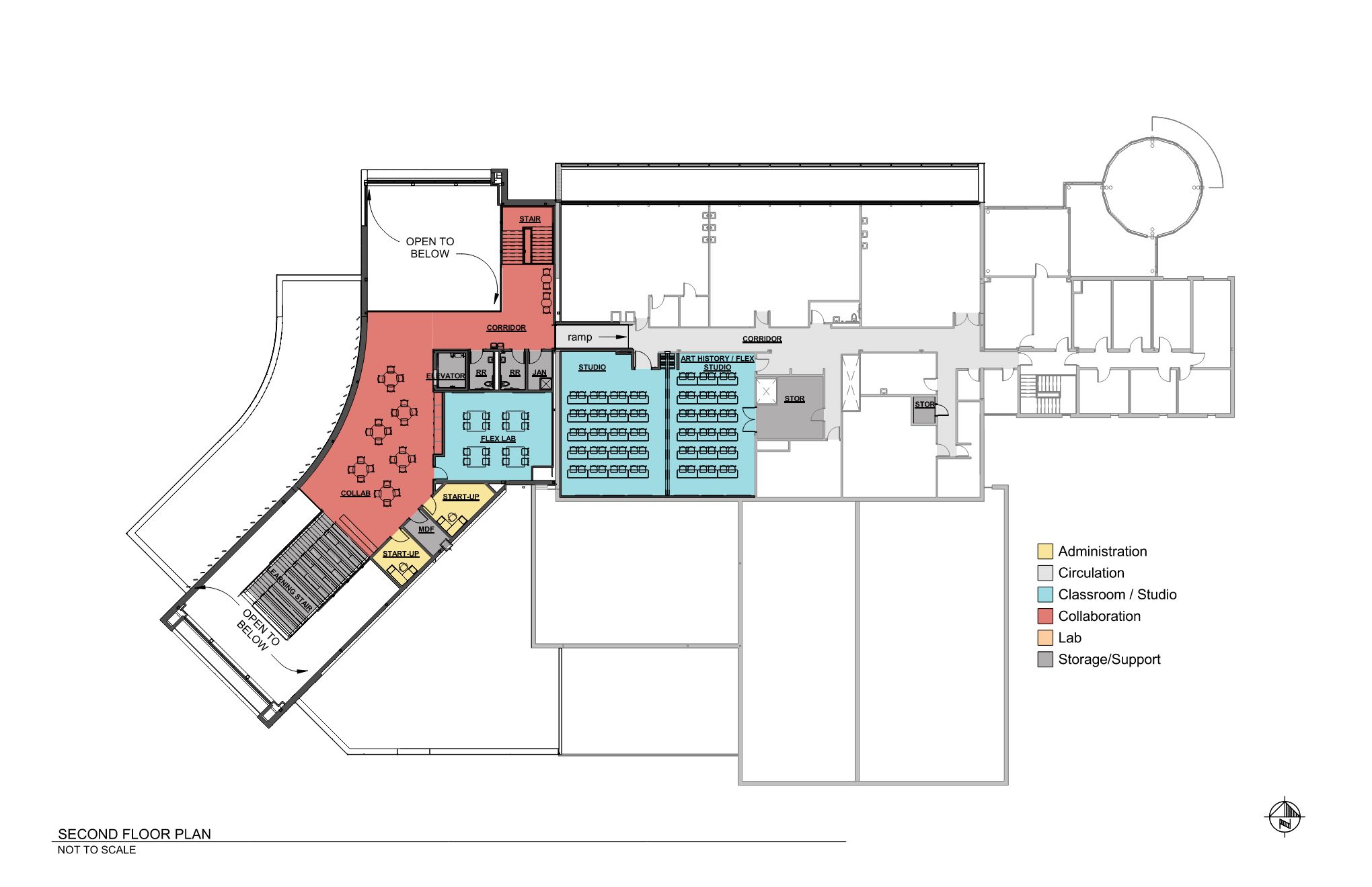
The First and Second Stories
What if a building could embody innovation — not just in how it looks, but in how it works?
From The Talluto Solution Center to multiple makerspaces, startup zones, and cross-disciplinary studios, every detail of the site and floor plan supports the Petrick Pillars: collaboration, cross-discipline, creativity, and conscience.
Located at the intersection of art, technology, and purpose, this is where students from every major will learn to solve complex challenges and turn ideas into action.
Signature Spaces
The Talluto Solution Center
Walk into The Petrick Idea Center, and you’ll arrive in The Talluto Solution Center — a vibrant, flexible space designed for bold thinking, spontaneous collaboration, and practical problem-solving. Whether students are refining a pitch, prototyping a product, or teaming up across majors, this is where it begins.
Surrounded by makerspaces, project pods, and connected to the Ames School of Art & Design through the Innovation Corridor, The Talluto Solution Center anchors the first floor as the central hub for bringing ideas to life.
Fisher Forum
At the center of The Petrick Idea Center is a space built for what matters most: connection.
The Fisher Forum will serve as a flexible, light-filled gathering space — part amphitheater, part classroom, part idea launchpad. Here, students from every discipline will come together to share stories, test ideas, and spark momentum.

